3 Residencias en Venta en Lomas de Chapultepec - Lomas Altas

Ubicadas sobre Av. Lomas Altas, estas tres propiedades únicas representan una oportunidad inigualable de vivir en una de las direcciones más codiciadas de la CDMX. 

Cada residencia ofrece más de 1,200 m² de construcción, incluyendo amplias terrazas, patios techados y estacionamientos.

Se entregan en obra gris con ventanas instaladas, brindando la posibilidad de personalizar cada espacio al gusto y estilo de vida del comprador.

Con entrega prevista en septiembre 2025, estas residencias ofrecen el balance perfecto entre ubicación, exclusividad y la libertad de crear un hogar verdaderamente INFORMACIÓN GENERAL a medida.

RESIDENCIA 1 – $7,750,000 USD

  • 1,196.4 m² de construcción (incluyendo, terrazas y patios techados y estacionamientos).
  • Jardín privado de 272.1 m².
  • 2 Plantas.
  • Un penthouse de proporciones excepcionales, con amplias vistas y un jardín que brinda una sensación única de casa dentro de un entorno elevado.

Residencia 1 Planta alta

Residencia 1 Planta Baja

RESIDENCIA 2 - $6,625,000 USD

  • 1,204 m² de construcción (incluyendo, terrazas y patios techados y estacionamientos).
  • Jardín privado de 75.3 m².
  • 1 Planta.
  • Espacios fluidos ideales para quienes buscan vivir con estilo y comodidad, con un jardín íntimo y funcional.

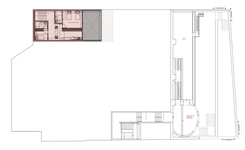
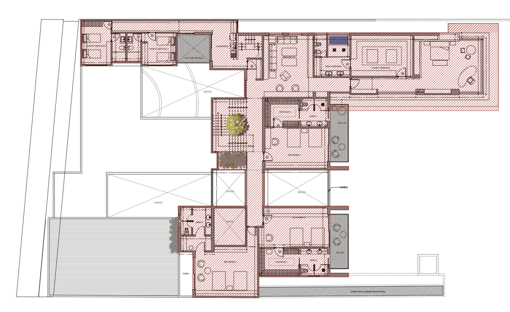
Residencia 3 - $7,950,000 USD

  • 1,277 m² de construcción (incluyendo, terrazas y patios techados y estacionamientos).
  • Jardín privado de 447 m².
  • 3 Plantas.
  • Diseñada para quienes valoran el espacio, la privacidad y el lujo contemporáneo.

Residencia 3 Planta Alta

Residencia 3 Planta Baja

Residencia 3 Sótano

Amenidades

4 Recámaras

4 Baños y 1 Medio Baño

12 Lugares de Estacionamiento

Gimnasio

Bodegas

Espacio de Oficina

Family Room

Caseta de Seguridad

Paneles Solares

4 Recámaras
4 Baños
1 Medio Baño
Ubicación:  CDMX
Construcción: Más de 1,200 m² (Por Residencia)

Precio desde

$6,250,000 USD

Contáctanos