El proyecto de remodelación contempla una propuesta moderna y sobria basada en tres ejes fundamentales:
Simpleza arquitectónica: pocos materiales, cuidadosamente seleccionados, predominan en el diseño. El uso de elementos como cancelerías negras, jardineras integradas y teja armónica con la fachada aportan un estilo elegante y minimalista.
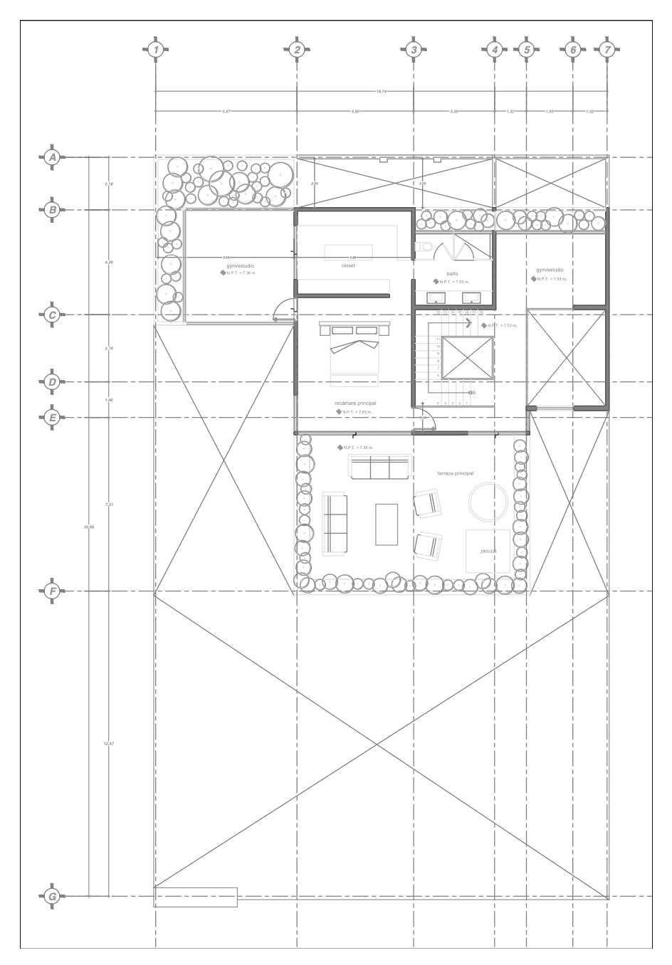
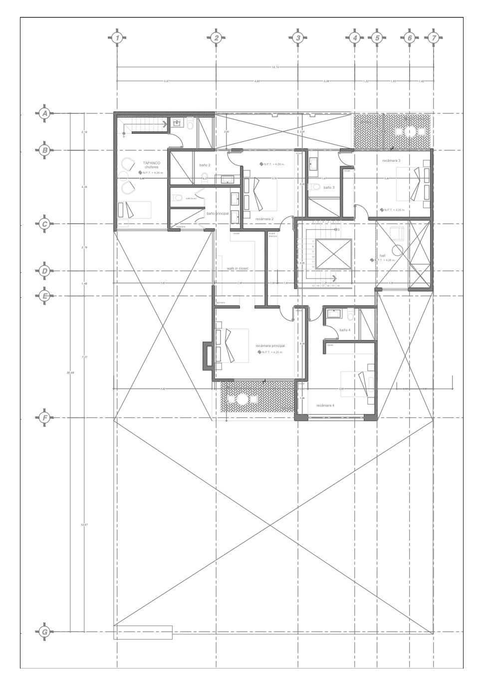
Ventanas de gran formato: los espacios se abren a la luz. Las cuatro recámaras cuentan con ventanales de piso a techo, dos de ellas con acceso directo a terrazas privadas. En la planta baja, los ventanales conectan el interior con las terrazas y el jardín, privilegiando la vista y ventilación cruzada.
En cuanto a distribución, la casa ofrece espacios generosos y bien iluminados: cocina, antecomedor, comedor principal, dos salas con chimeneas, cuarto de TV, estudio, dos terrazas, un patio interior, área de lavado y planchado, además de dos cuartos de servicio. Todo ha sido diseñado para responder a las necesidades de una familia moderna que busca privacidad, amplitud y estilo.
Además, el proyecto incluye una casa de visitas independiente, ideal para recibir familiares o invitados de largo plazo, manteniendo la privacidad y comodidad de la casa principal.
Esta propiedad no solo es una inversión en una de las zonas con mayor plusvalía de la Ciudad de México, sino una oportunidad para crear un hogar excepcional con carácter propio.
Nos especializamos en la compra, venta y estructuración de inversiones inmobiliarias de alto valor. Nuestro enfoque combina análisis financiero, estrategia patrimonial y gestión de activos, ofreciendo a los inversionistas oportunidades sólidas con rentabilidad comprobada y riesgo controlado.
Operamos en los segmentos más exclusivos del mercado, generando valor a través de proyectos premium con potencial de plusvalía y retorno sostenible.
Déjanos tu nombre y correo y nos pondremos en contacto contigo cuanto antes.
© Brickhaus Capital. Todos los Derechos Reservados 2025.
Contáctanos