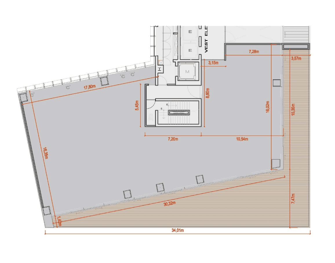
Ubicado en el 6 piso de la prestigiosa Torre Rubén Darío, este departamento ofrece:
Vistas incomparables hacia el Bosque de Chapultepec y el Zoológico. Forma parte de uno de los complejos residenciales más exclusivos y emblemáticos de la Ciudad de México, en el corazón de la colonia Polanco.
Diseñado por el reconocido despacho Sordo Madaleno este desarrollo fusiona lujo, diseño contemporáneo y funcionalidad.
Características del departamento:
Se entrega en obra negra, brindándote la libertad de diseñar cada espacio a tu gusto y necesidades.
Amplios espacios y un lienzo en blanco con infinitas posibilidades de personalización. El desarollo cuenta con ammenities como: gimnasio, juice bar, ludoteca, spa, vestidores, salón de jóvenes, chapoteadero, estética, terrazas con cabannas, áreas verdes, alberca, juegos infantiles, salón de fiestas, cafetería, sala de juntas, etc.
Nos especializamos en la compra, venta y estructuración de inversiones inmobiliarias de alto valor. Nuestro enfoque combina análisis financiero, estrategia patrimonial y gestión de activos, ofreciendo a los inversionistas oportunidades sólidas con rentabilidad comprobada y riesgo controlado.
Operamos en los segmentos más exclusivos del mercado, generando valor a través de proyectos premium con potencial de plusvalía y retorno sostenible.
Déjanos tu nombre y correo y nos pondremos en contacto contigo cuanto antes.
© Brickhaus Capital. Todos los Derechos Reservados 2025.
Contáctanos